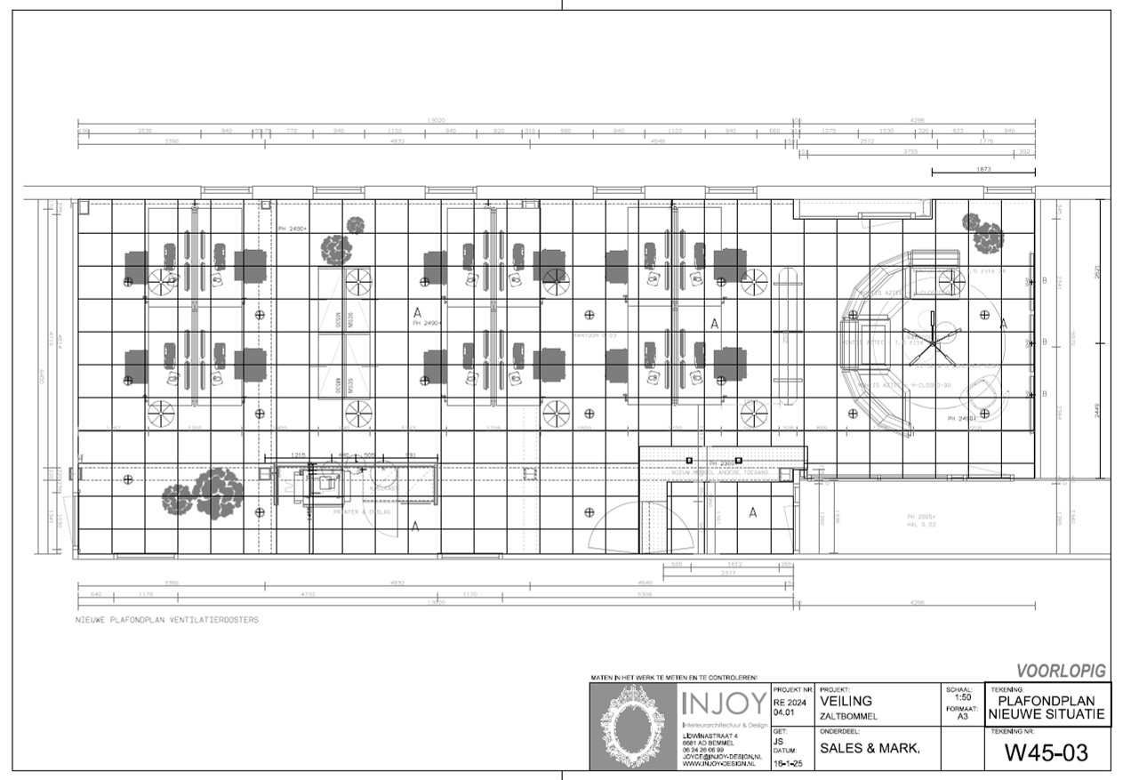
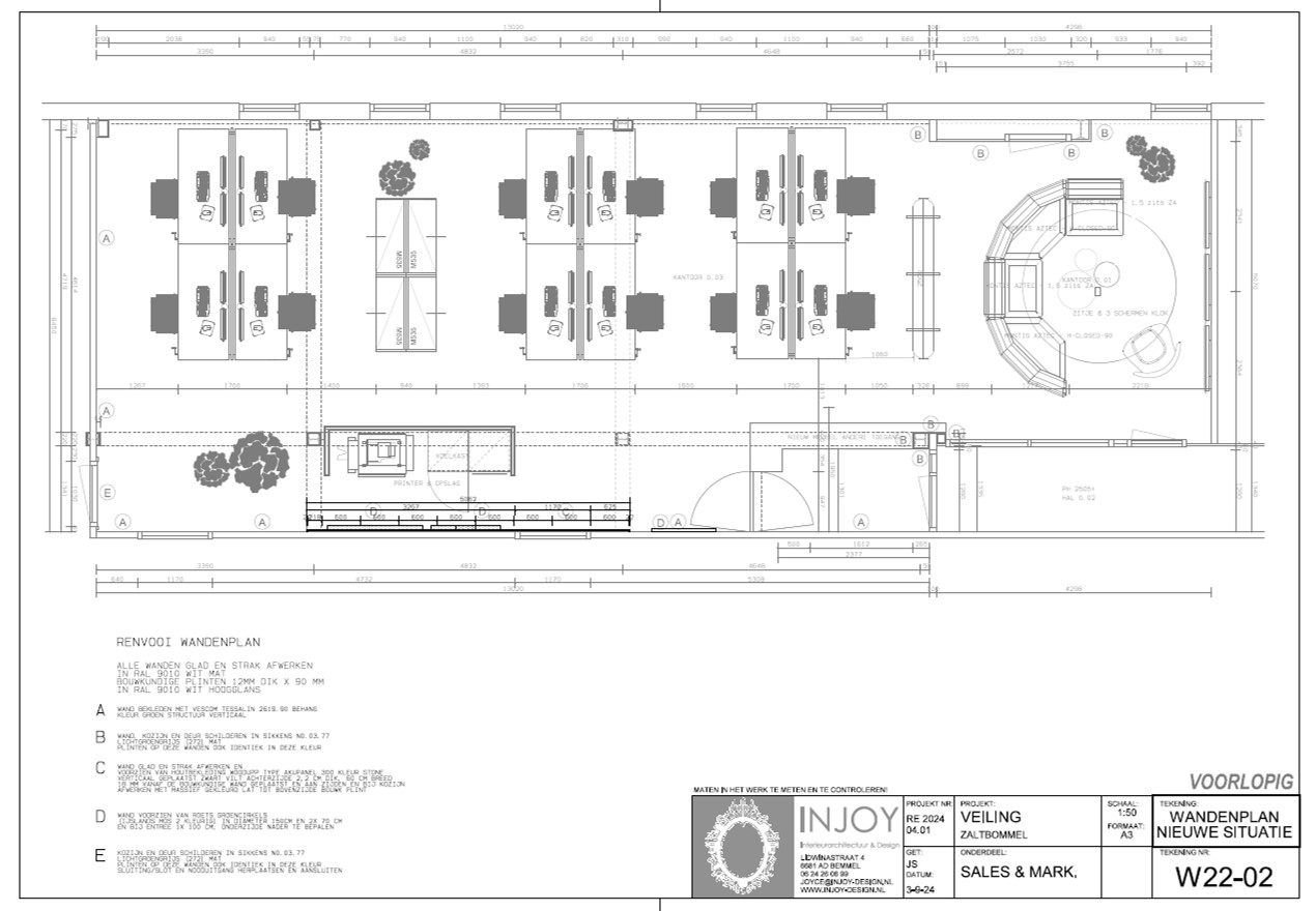
Renovatie van het Sales en Marketing kantoor binnen het Veiling gebouw. De digitale klok van het fruit is hier te zien op het geprojecteerde scherm met beamer, waardoor de medewerkers hiernaar kunnen handelen.
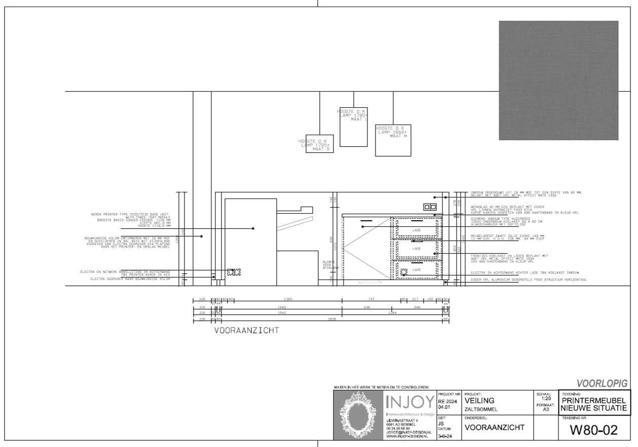
Door de actieve werkwijze op deze afdeling alle werkplekken symmetrisch ingedeeld en apart een print met pantry meubel gemaakt. De groene kleuren en houtlook materialen passen binnen de huisstijl van de Veiling met een knipoog naar een historisch beeld van fruitveiling lang geleden..
Vanuit een gesprek over het programma van wensen, naar 3D ontwerp, technische tekeningen uitgewerkt en de bouw begeleid met uitvoerende aannemer.
















