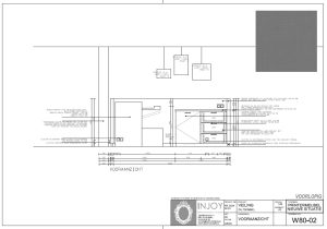
pantrymeubel sales